تابعنا

AV Micro Vibrasyon Motorları

Avibro Vibrasyon Motorları

Tüm AV ile başlayan serilerdeki ürünlerde:

II2D Ex tb IIIC (T120 °C) Zone 21 Zone 22

Micro Titreşim Motorları Teknik Özellikler:

1 faz giriş voltajı :
Tüm AVM-M Serileri için : Standart uygulamalar 50Hz 220 – 230 Volt ile 60Hz 110-115 Volt Talep üzerine özel voltaj ve frekanslarda üretim emri verebilirsiniz.

Frekans ve Devir/dakika

Tüm AVM-M Serileri için :
2 poles : 3000 rpm- 50 Hz 3600 rpm- 60 Hz

Micro Vibrasyon Motorları Titreşim gücünü Ayarlama

AVIBRO Vibrasyon Motorları (S1) çalışma rejimine göre en fazla titreşim elde etmeniz için tasarlanmıştır. Vibratör motoru üzerinde bulunan eksantrik ağırlıklarda bulunan derece ile titreşim kuvvetini % 0 ile % 100 arasında seçim yapmanıza olanak sağlar. Vibro motorun her iki mil ucundaki eksantrik ağırlıkların açısının aynı olması gerekmektedir.

AVIBRO Mekanik Koruma:

Tüm AV serisi ürünlerimiz yürürlükteki EEC Direktiflerine (makinelerin güvenliği 2006/42/AT; ve 2014/35/AB Alçak gerilim yönetmeliklerinin serbest bırakıldığı temel sağlık ve güvenlik gerekliliklerine uyduğunu ve serbestçe dolaşabilme gerekliliklerini yerine getirebildiğini beyan ederiz. Üründe bir değişiklik olduğu takdirde bu kabul edilmeyecek ve bu beyan geçerliliğini yitirecektir.

AVIBRO Elektrik Motoru İç Yapısı :

Dünyamızda çevresel etkilerin farkındayız. Bu sebeple AVIBRO en düşük kayıplı silisyum manyetik laminasyon sacları ile oluşturduğu STATOR-ROTOR tasarımı ile size rakiplerine göre daha fazla güç sunarken, ısınmayı azaltarak verimliliği artmış ürünler sunuyoruz.

AVIBRO Vibrasyon Motorları Yalıtım Sınıfı :

AV serisi vibrasyon motorlarımız güçlü standart H sınıfı izolasyona sahiptir. Emriniz üzerine Daha güçlü izolasyon sınıfı tercih edebilirsiniz. Eksantrik ağırlık kapakları, rulman kapakları ve klemens kapakları o-ring contalar ile dış ortamda oluşan zararlara karşı mekanik korumalıdır. Klemens kutusu içerisinde dışardan sızmalara ve titreşime karşı kırılmalara karşı Epoksi reçine ile korunmaktadır. IP 67

AVIBRO Vibrasyon Motorları Çalışma Ortam Sıcaklığı :

AV Serisi ürünler için -20 C° ile +40 C° ( -4 F ile 104 C° )

AVIBRO Vibrasyon Motorları Termik Isınma :

AV serisi ürünler için, standart termistör uygulamamız henüz bulunmamaktadır. Emriniz üzerine AVM serisi ürünlerde 130 C PTC Uygulama sunuyoruz.

AVIBRO Vibrasyon Motorları Gövde ve Dönen Mil (rotor şaft)

AV serisi, diğer tüm serilerde ve yeni ürünler için, ürün gövdeleri ve rulman kapakları 3 boyutlu CAD program üzerinde stres analizleri yapılmaktadır. Sonrasında 10-30 yapı büyüklüğünde ki gövdelerimizi özel alaşımlı alüminyum enjeksiyon ve rulman kapaklarımızı GGG 40 Sfero dökme demirden imal ediyoruz. Dönen millerimiz (rotor şaft), ısıl işlem görmüş burulma ve kopmaya yüksek dirençli NiCrMo özel çelik yuvarlak hammadde kullanıyoruz.

AVIBRO Vibrasyon Motorları Boya Uygulamamız

AV Serisi ürünlerimizin neredeyse tamamında elektro statik epoksi toz boya kullanıyoruz.
Gövde renk : Alüminyum
Tas koruma kapakları renk : Siyah

AVIBRO Vibrasyon Motorları Rulmanlar ve Yağlama

AVIBRO vibratör motorları standart ürünlerin tamamında C4 boşluklu uzun ömürlü titreşim için üretilmiş rulmanlar kullanmaktadır. Böylece müşterilerimize uzun ömürlü vibrasyon motorları üretmekteyiz. Vibro motor rulmanlarımız için uzun ömürlü, yüksek merkez kaç kuvvetleri ile titreşimin oluşturduğu stres, rulman iç tanelerine gelen yüklerden oluşabilecek aşınmalara karşı yüksek mukavemetli gres yağları kullanmaktayız. Rulman yataklarında gresin uzaklaşmadan çalışması için labirent tip kanallar ile yağ keçeleri kullanıyoruz.

AVIBRO Vibrasyon Motorları Özel Sipariş

Ön ısıtıcılar
Paslanma tas koruma kapakları Cr
Özel uygulamalarınız için farklı ayak bağlantılı delikler
Tamamen size vibro motor, özel tasarım imalatlar
sunmaktayız.

AV 2 poles 3000 rpm-50Hz / 3600 rpm-60Hz

Model / Type Devir (Rpm)
(Hz) 50 Hz
Devir (Rpm)
(Hz) 60 Hz
Santrifüj Kuvveti /
Centrifugal Force
(Kg/F) 50Hz
Giriş Gücü / Input
Power (W)
50Hz
Voltaj / Voltage
(V) 50Hz
Nominal Akım / Nom. Current
(Amp) 50Hz
AV-2T 3000 3600 22 22 400 0,12
AV-4T 3000 3600 44 40 400 0,18
AV-6T 3000 3600 65 40 400 0,18
AV-2M 3000 3600 22 22 220 0,12
AV-4M 3000 3600 44 40 220 0,18
AV-6M 3000 3600 65 40 220 0,18
AV-2 3000 3600 22 22 220 0,12
AV-4 3000 3600 44 40 220 0,18
AV-6 3000 3600 65 40 220 0,18

 

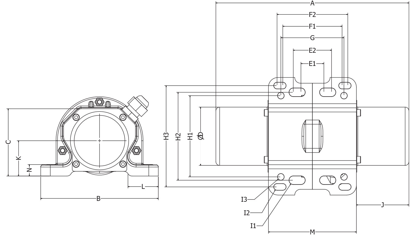
AV 2 poles 3000 rpm-50Hz / 3600 rpm-60Hz

Model / Type A B C ØD E1-E2 F1-F2 G H H2 H3 I1 I2 I3 J K L M N
AV-2T 182 123 72 61 24-40 62-74 60 85 92 106 9 7 7 45 37 31.5 92 12
AV-4T 182 123 72 61 24-40 62-74 60 85 92 106 9 7 7 45 37 31.5 92 12
AV-6T 202 123 72 61 24-40 62-74 60 85 92 106 9 7 7 55 37 31.5 92 12
AV-2M 182 123 72 61 24-40 62-74 60 85 92 106 9 7 7 45 37 31.5 92 12
AV-4M 182 123 72 61 24-40 62-74 60 85 92 106 9 7 7 45 37 31.5 92 12
AV-6M 202 123 72 61 24-40 62-74 60 85 92 106 9 7 7 55 37 31.5 92 12
AV-2 182 123 72 61 24-40 62-74 60 85 92 106 9 7 7 45 37 31.5 92 12
AV-4 182 123 72 61 24-40 62-74 60 85 92 106 9 7 7 45 37 31.5 92 12
AV-6 202 123 72 61 24-40 62-74 60 85 92 106 9 7 7 55 37 31.5 92 12

منتجات أخرى

Konya Motor Logo

0 332 345 19 19

© 2025 Konya Motor | جميع الحقوق محفوظة.